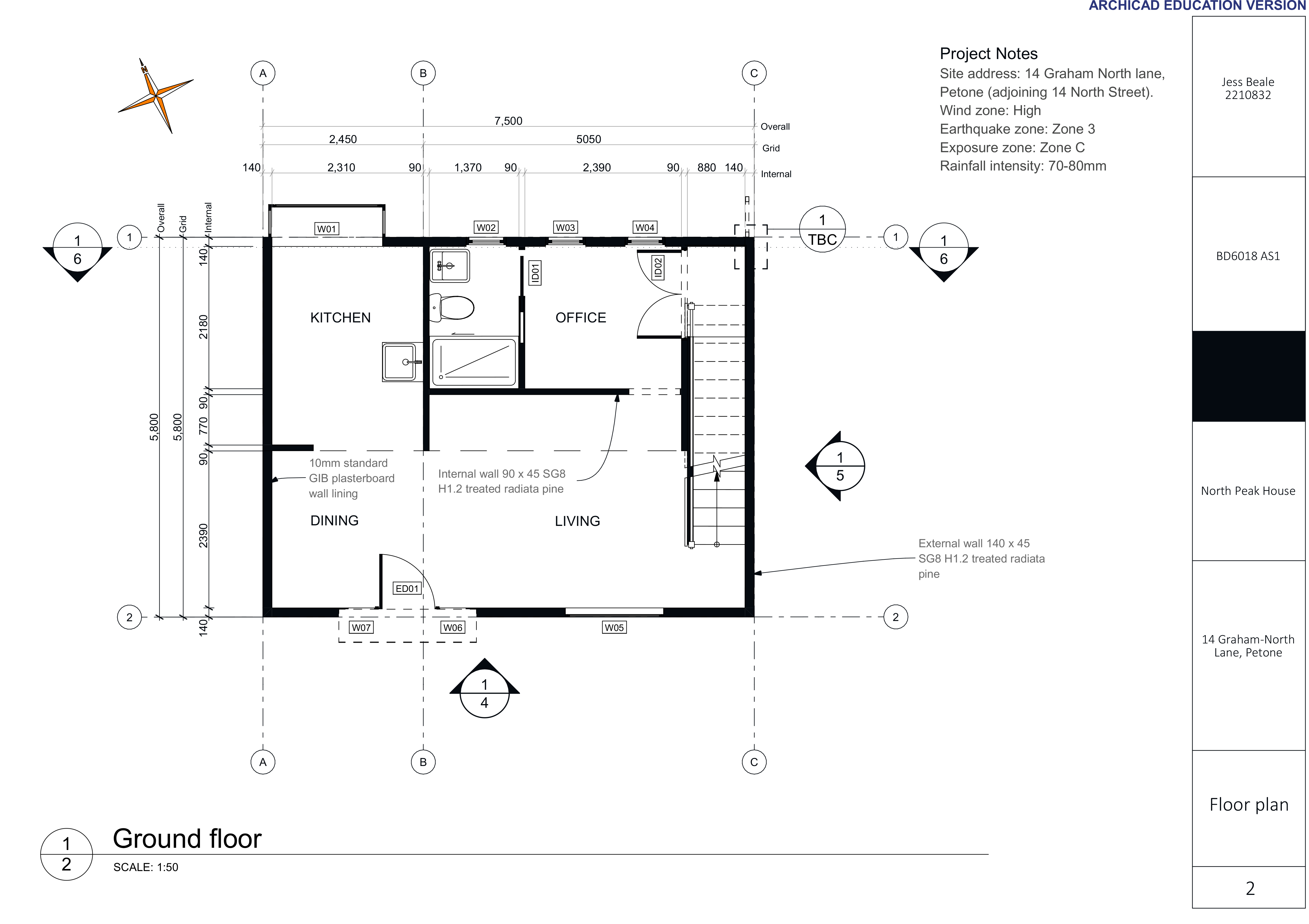
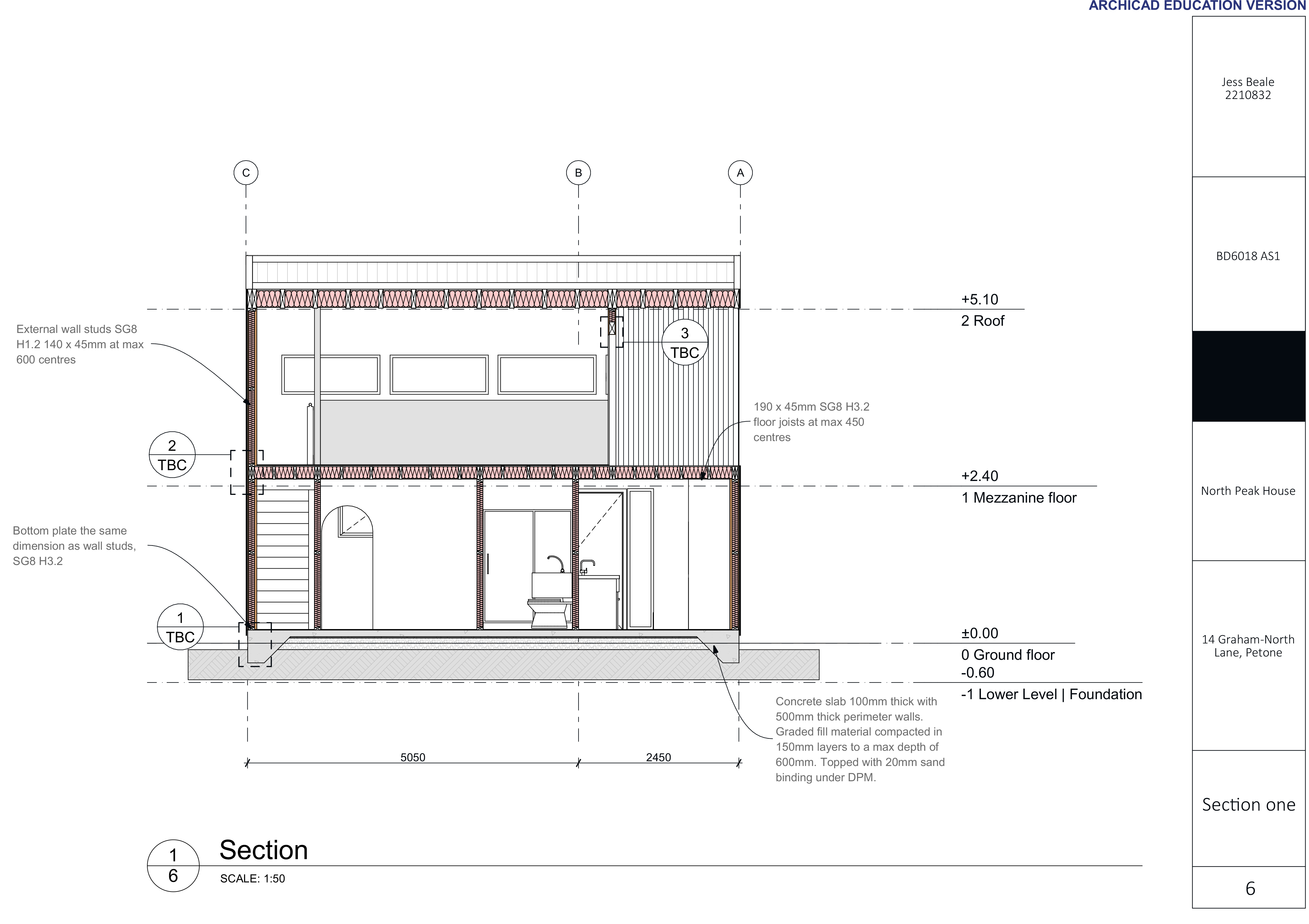
North Peak House - November 2021, Archicad

The North Peak House was a design prepared to the following brief: